











Perro Loco House
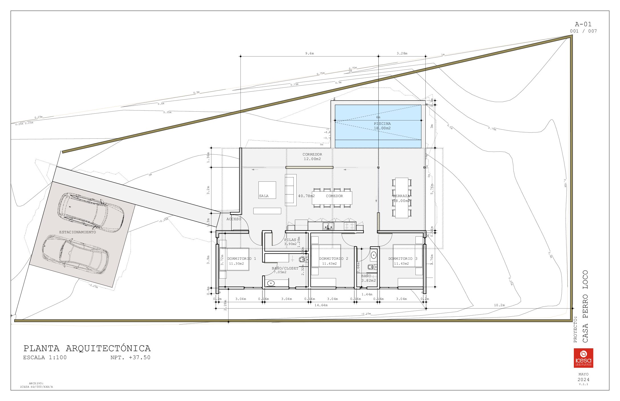
Perro Loco House is organized as two parallel volumes that negotiate the conditions of the dry tropical landscape in Guanacaste. A compact, solid bar contains the three bedrooms, bathrooms, storage, and technical spaces. This volume is intentionally quiet—its roof concealed, its openings controlled, and its material expression restrained to emphasize privacy and thermal stability.
Running alongside it, a lighter and more open structure accommodates the social areas. Here a single floating roof defines the character of the space, extending beyond the glass enclosure to create a deep shaded terrace. The roof’s height and slender steel supports allow generous cross-ventilation and daylight while maintaining protection from the climate. Large sliding fronts dissolve the limit between interior and exterior, with the pool and garden becoming an integral part of daily occupation.
Material decisions remain calm and durable: teak ceilings and cabinetry, neutral stone floors, matte black metalwork. These elements frame the vegetation and the shifting quality of tropical light without competing with them. The spatial relationship between the two volumes—one compact and introverted, the other elevated and permeable—gives the house its architectural clarity despite its modest scale.
The project works through proportion, shade, and openness rather than through expressive gestures. In doing so, Perro Loco House establishes a measured, grounded presence within its site while offering a simple and comfortable structure for coastal living.
Cliente
Guntanis
Fecha del proyecto
2025
Categoría
Hospitalidad · Interior · Planificacion maestra · Residencial



